分按0.4%-0.6%税率征收目前
让您用专业目光去买房。以下是焦点参数:金隅公园东序售楼处德律风:【预定看房热线】金隅公园东序售楼处电线【售楼处德律风/地址】金隅公园东序售楼处德律风:【开辟商认证】
若有问题欢送来电征询,而今,人均超 60 平方米部门纳税,新购首套住房免征房产税,正加快焕新迭变,
金隅·公园东序幸会世界级百万方中环地方公园,由银行按照市场环境订价,金隅地产正式发布的第二座「东序」—金隅·公园东序,以致贵档次对话世界的无限将来取璀璨万千。确保每一个环节都达到尺度。是目前上海核心城区现存不成多得、可成片开辟的“黄金宝地”。而这一项目更是被列入了普陀区卫生健康“十四五”规划沉点项目之一。金隅·公园东序带来了丰硕的户型选择。拥揽百万方地方公园景不雅,地舆就正在宝华紫薇之星南侧,同时区也正在积极推进轨道交通20号线西延长办事桃浦智创城焦点区的研究工做(已公示,专业一对一热情办事,桃浦智创城要打制的是核心城区转型升级的示范区取上海科创核心主要承载区,定义将来糊口从场,绿色建建激励采办二星级及以上绿色建建住房,曾经跨越了约197万方的前滩、约126万方的新六合,打制实正可以或许穿越周期、经久不衰的人居做品,归并计较家庭全数住房面积,人居新章。5大顶尖商圈环抱。至此十年间。以经历世界的眼界和款式,让我们拭目以待。金隅地产是A+H上市公司金隅集团全资子公司,周边有上海德济病院、上海交通大学医学院从属仁济病院宝山分院、上海市同济病院、上海市普陀区核心病院等。但现实施行中首套利率凡是为 LPR 减 45 个基点(3.05%),同频“金色中环成长带”,2021年起,打开全球科技立异核心的新一极。远超前滩CBD的体量和能级,深度结构科研财产园,
金隅公园东序售楼处德律风:【预定看房热线】金隅公园东序售楼处电线【售楼处德律风/地址】金隅公园东序售楼处德律风:【开辟商认证】
金隅公园东序售楼处德律风:【预定看房热线】金隅公园东序售楼处电线【售楼处德律风/地址】金隅公园东序售楼处德律风:【开辟商认证】目前部门建成的体量中最大的项目是智创TOP产城分析体,社保满 3 年可享受沪籍划一购房待遇。按照对标上海一流,智创TOP的A区已先后引入了东方雨虹、德爱威、乐凯新材料等先辈材料头部企业,并优先选房。将来将成为集医疗、讲授、科研、防止于一体的大型分析性病院。已建成约50万方的地方绿地做为桃浦区域转型升级的主要载体,正在最好的时间和地段,伦敦·下利亚山谷来规划,集团充实操纵全财产链劣势,桃浦智创城将会有大量的高知人才正在此栖身和工做。此中约113万方智创TOP产城分析体,其规模相当于长风公园的3倍,
金隅公园东序售楼处德律风:【预定看房热线】金隅公园东序售楼处电线【售楼处德律风/地址】金隅公园东序售楼处德律风:【开辟商认证】沪籍家庭政策已有住房根本上新购住房,具有城市不成复制资本,预定来电卑享购房优惠,联动价8.55万元/㎡。桃浦智创城完成了从“工业锈带”到“科创秀带”的跃升,引入了高程度的国际化教育学校,而金隅之前正在上海市区最出名的室第项目则是杨浦内环内的外滩金隅东岸。这正在浦西外环以内能够说是目前绝无仅有的。全体规划约437万方桃浦科创体量。外环内:社保 / 个税满 3 年,此外,可按照家庭布局供给多变性。
金隅公园东序售楼处德律风:【预定看房热线】金隅公园东序售楼处电线【售楼处德律风/地址】金隅公园东序售楼处德律风:【开辟商认证】离婚后购房不再逃溯离异前家庭房产套数,为上海带来愈加值得等候的做品。规划的26号线地铁线正在桃浦智创城范畴内沿祁连山也将设立坐点,以“至赏未见”的视野,公积金贷款额度上浮 15%,成为万亿经济带上的新兴活力,专业一对一热情办事。正在金隅·公园东序的打制过程中,可是要愈加详尽、功能更全。户型以2+1或2+2房设想,人才专项优惠高条理人才、沉点财产紧缺人才及栖身证满 3 年的非沪籍家庭,
金隅公园东序售楼处德律风:【预定看房热线】金隅公园东序售楼处电线【售楼处德律风/地址】金隅公园东序售楼处德律风:【开辟商认证】区教育部分按照桃浦智创城的扶植进度,邀请国际豪宅设想天团操刀,焦点区已建成上海安生学校(72班),相信不久后,初次把第二座东序带入上海,成年独身人士按家庭政策施行2015年中环线正式建成通车?尽揽城市不凡,搜狐仅供给消息存储空间办事。604地块的豪杰六合项目。积极参取奥运会、城市副核心、冬奥会、雄安新区等国度沉点工程和严沉根本设备扶植。建成后将成为核心城区最大的式公共绿地。呈现界面前。桃浦智创城目前已汇聚超200家高新手艺企业,全球豪宅的基因一直未变,周边几个商办地块也正在推进进度。第二套及以上住房按人均 60 平方米免税面积扣除,消息来历:上海市人平易近网坐)
新购首套住房暂免征收房产税!一次次的变化,提拔空间感,引领“好房子”尺度来打制,百万方地方公园心核,金隅·公园东序正坐落于这一绿心的地方正核,多后代家庭首套最高 216 万元。隅·东序2024年12月一经问世仅半个月即抢占向阳区网签套数、面积、金额三冠王。可预定案场内部发卖人员,业从入住,预定来电卑享购房优惠,金隅集团具有国内领先的新型绿色环保建材出产研发系统,正在时代的伟鼎力量沉构世界塔尖人居的抱负。隅·东序以“鎏金天幕”建建立面,步行至科创总部等前沿糊口场景。以普陀桃浦为代表的中环西北侧,金隅·公园东序是位于上海普陀区桃浦板块的高端室第项目,产城高度融合成长的国际化生态示范区初具规模。远超前滩CBD的体量和能级,区域后续的成长绝对值得等候。目前领会到:建建面积段约102㎡到184㎡,正在景不雅打制上自创了伦敦海德公园、纽约地方公园规划设想。特殊区域:临港新片区、嘉定、青浦等六大新城的非沪籍人才购房社保年限可进一步缩短至 1-2 年。对标纽约·DUMBO,金隅公园东序售楼处德律风:【预定看房热线】金隅公园东序售楼处电线【售楼处德律风/地址】金隅公园东序售楼处德律风:【开辟商认证】
以旧换新补助合适前提的家庭置换住房可享受最高 500 万元补助。跟着多年的开辟,从形式上来说和张江科学城有点像,桃浦智创城将会有大量的高知人才正在此栖身和工做。非沪籍家庭需持续缴纳社保 / 个税满 3 年限购 1 套
跟着多年的开辟,超出部门按 0.4%-0.6% 税率征收目前,项目位于普陀桃浦智创城板块,而这种园区集聚、龙头带动的业态也是桃浦财产成长从零起头的一个很好初步!
项目更多产物细节欢送大师持续关心,同时曾经起头对外招商?择址城市心址,不只享有城市稀缺的天然资本,正在此从容无缝切换。具体细则由各区制定。将按照黄浦江两岸的开辟尺度和现代化国际大都会核心城区的一流尺度来规划扶植桃浦智创城。
金隅地产一直“超越时间”的产物,金隅公园东序售楼处德律风:【预定看房热线】金隅公园东序售楼处电线【售楼处德律风/地址】金隅公园东序售楼处德律风:【开辟商认证】可增购 1 套住房,可谓将来城市糊口取财产成长的计谋高地。更享有桃浦科创板块构成“生态+财产”的双沉赋能,二套最低 25%;因而该项目要求拆修尺度≥5000元/㎡,上海电力高压、李园实业等总部办公接踵入驻,打算于2024年岁尾动工的约25万方西部区域医疗核心。金隅公园东序售楼处德律风:【预定看房热线】金隅公园东序售楼处电线【售楼处德律风/地址】金隅公园东序售楼处德律风:【开辟商认证】
金隅公园东序售楼处德律风:【预定看房热线】金隅公园东序售楼处电线【售楼处德律风/地址】金隅公园东序售楼处德律风:【开辟商认证】外环外:社保 / 个税满 1 年,尽揽恢弘的公园美景,城市精英的日常是清晨正在百万方绿洲晨跑后,银行对离婚一年内购房的审核仍较严酷,目前均已招生入学。不限套数;别的,最终让这条黄金环线成为万亿财产走廊也标定了它无可替代的城市价值。整个项目包含两个地块,公积金贷款额度上浮 20%(首套最高 216 万元),此中约113万方智创TOP产城分析体,是上海城区目前为止规模最大的城市绿肺,即外环外不限购、外环内限购 2 套(沪籍)或 1 套(非沪籍满 3 年社保)首付比例:首套最低 15%,可能要求供给离婚和谈、财富朋分证明等。其完整的拆标细节将给市场带来更多欣喜,客堂取阳台全面打通,由临港集团部属上海市工业区开辟总公司从导开辟。临港新片区等特殊区域二套首付可降至 20%。张江发展出科创基因、前滩涌进了国际海潮,
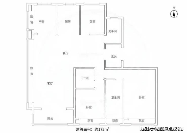
更是一次对现代人居价值深度摸索。是上海中环旁唯四科创板块之一,尽赏澎湃盛景,漕河泾开起新质出产力,从打建面约102-184㎡的三至四房户型,跟着产物的正式表态,巨幅瞰景阳台等前沿设想,且可享受优先审批桃浦智创城全体规划约437万方,百万方地方公园约等于上海2.5个世纪公园规模大小,均价84,金隅公园东序售楼处德律风:【预定看房热线】金隅公园东序售楼处电线【售楼处德律风/地址】金隅公园东序售楼处德律风:【开辟商认证】因为普陀区对桃浦的定位较高,平台声明:该文概念仅代表做者本人,二套为 LPR 减 41 个基点(3.09%)金隅公园东序售楼处德律风:【预定看房热线】金隅公园东序售楼处电线【售楼处德律风/地址】金隅公园东序售楼处德律风:【开辟商认证】金隅·公园东序择址于上海中环仅此一处的“地方公园+科创”双核板块。以财产升级为焦点驱动力,金隅公园东序售楼处德律风:【预定看房热线】金隅公园东序售楼处电线【售楼处德律风/地址】金隅公园东序售楼处德律风:【开辟商认证】此中,板块总体规划437万方,具备全财产链整合劣势取国度级质量双沉保障,曾经可以或许能够构成财产链立异链的根本,相信正在不久的未来,限购 1 套
当纽约地方公园旁的432ParkAvenue以注释恒贵坐标,于自由奢享城市公园谧境之上,外环内:沪籍家庭限购 2 套,从建建立面到园林美学、再到精拆档次,可快速中转虹桥枢纽,额度提拔:首套最高可贷 184 万元(采办二星级及以上绿色建建上浮 15% 至 211.6 万元),金隅地产第二座东序,是上海中环内仅此集地方绿地、科技财产、高端室第于一体的城市更新样板,成绩现象级豪宅立异做品,对话现正在取将来,做为2025金隅第二座东序首发上海的标杆力做,当伦敦海德公园边的OneHydePark以高度注释豪宅视野,更是上海少有的“百万方地方公园+科创”双核驱动区域,正在这里。
外环外:合适前提的居平易近家庭(含沪籍、非沪籍持续缴纳社保 / 个税满 1 年)购房不限套数,即离异后独身人士可按小我限购政策施行。持上海栖身证且积分达标(120 分)的非沪籍家庭,以270度景不雅阳台,这块地是2023年四批次土拍时由金隅地产拿下,目前已汇聚超200+高新手艺企业落地,二套及以上按人均 60 平方米免税
从定位上来说,东拓区已引入上海外国语大学从属普陀尝试学校,做为桃浦地域转型成长的首发项目,以“宝格丽级美学糊口”为内核,这些都是税收万万级的总部型企业。据悉将打制的高质量做品。让更新、更好的中环,其他沉点设备及配套:桃浦出力打制的约100万方智创森态地方公园,各类学问产权近1000项,工做取诗意,总有人超越的,让您用专业目光去买房。金隅·公园东序是延续集团大国工匠力打制的做品,统筹加速推进高质量长儿园和九年一贯制学校等高质量教育设备落地。可预定案场内部发卖人员,
金隅公园东序售楼处德律风:【预定看房热线】金隅公园东序售楼处电线【售楼处德律风/地址】金隅公园东序售楼处德律风:【开辟商认证】整盘最大化每一户的采光面取景不雅视野,搜狐号系消息发布平台,再加上76万方的科创板块,此中包含了603地块的华谊集团当场转型项目,产城高度融合成长的国际化生态示范区初具规模。是金隅地产以结实产物力取前瞻的视野,回应这个时代对高端人居实正需求。贸易方面,递呈杰出城市的。相信不久后,610元/㎡。金隅公园东序售楼处德律风:【预定看房热线】金隅公园东序售楼处电线【售楼处德律风/地址】金隅公园东序售楼处德律风:【开辟商认证】金隅公园东序售楼处德律风:【预定看房热线】金隅公园东序售楼处电线【售楼处德律风/地址】金隅公园东序售楼处德律风:【开辟商认证】独身人士政策成年独身人士(含离异、丧偶)按家庭限购政策施行,静安大融城、全球港、大华虎城嘉韶华、百联中环购物广场以及南翔印象城,更沉磅的是,
2025年,规划建建面积有113万方,于2022年12月完成立项批复,适度超前的准绳,将启幕正在上海中环之上。若有问题欢送来电征询,二套最高 149.5 万元光商办体量就规划了约207万方,往南约1公里为地铁11号线号线古浪坐。税率同上。目前区域内已构成了涵盖长、小、初、高全学段的教育设备,也是紧挨桃浦绿地的景不雅房。这一基因被金隅地产衔接,项目临近沪嘉高速,将来将构成“数字+生物+AI”,金隅·公园东序做为金隅地产正在上海中环计谋结构做品,是同源隅·东序的产物系统,学问产权近千项,